川越市氷川町 新築分譲 東武東上線『川越駅』バス21分 【川越小学区】
浴室乾燥機のあるお風呂場は
洗濯物を干すときにも便利です☆
動線を意識したデザインの
システムキッチン付きで作業能率が上がります☆
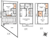
こちらの物件の間取りは3LDKとなっており、
室内も広々です☆
川越市で、
日々健やかに過ごせる戸建てを
アジア不動産がお届けいたします☆
気になる方は、
info@asia-fudousan.co.jpまで
遠慮なくご連絡ください(^o^)
ローンシミュレーションこの物件を購入した場合の、月々の支払い価格の一例です。借り入れを保証するものではございません。
- 返済期間
-
- 金利
-
- ボーナス時の増額(1回分)
-
- 借入金額:
-
- 頭金:
-

- 毎月の返済額:
(※元利均等方式 金利5.00%まで ※返済年数5~50年まで入力できます)
(※ボーナスは年2回で計算しています。1000万円まで入力できます)
(※物件購入時、その他諸費用が発生する場合がございます)
担当者のコメント (株)アジア不動産

- 機能的で使いやすいシステムキッチン付きなので、
お料理を楽しめます。
浴室乾燥機のあるお風呂場は洗濯物を干すときにも便利です。
ご家族にも十分な広さの3LDK物件です。
建物面積92.94平米で広々している物件です。
アジア不動産は、
お客様の住まい探しを応援致します。
不動産情報をお求めであれば、
お気軽にお問い合わせください。
ポイント・特徴
物件概要
【新築一戸建】 物件番号:90259590 情報更新日:2026年01月13日 次回更新予定日:2026年01月25日| 所在地 | 埼玉県川越市氷川町137-12 | ||
|---|---|---|---|
| 交通 | |||
| 間取り/詳細 |
3LDK/ 洋室 7.5帖 1室/LDK 14.2帖 1室/洋室 5.2帖 1室/洋室 5.0帖 1室 |
建物面積(坪数) | 92.94㎡(28.11坪) |
| 価格 | 2,980万円 | ||
| 駐車場/月額料金 | -/- | ||
| 土地の敷金/保証金 | -/- | 借地料/借地期間 | -/- |
| 土地権利 | 所有権 | 土地面積(坪数) | 74.10㎡(22.41坪) |
| 傾斜地部分面積 | - | 路地状敷地 | - |
| 私道負担面積/セットバック | -/無 | 高圧線下面積 | - |
| 地目/地勢 | 宅地/- | 接道状況 | 角地(北 公道 5.5m)(東 私道 4.0m) |
| 建ぺい率/容積率 | 70%/200% | 用途地域 | 準工業 |
| 都市計画 | 市街化区域 | 種別/構造 | 新築一戸建/木造 |
| 階建 | 3階建 | 築年月(築年数) | 2024年 11月 (新築) |
| 総区画数/販売区画数 | -/- | 向き | - |
| 現況 | 完成済み | その他の法令上の制限 | - |
| 取引態様/引渡時期 | 仲介/相談 | 建築確認番号 | - |
| 物件番号 | 90259590 | 取引条件の有効期限 | 2026年01月25日 |
| 設備条件 |
|
||
| 備考 |
使いやすい全居室収納は物が多い家庭にお薦めな設備です。 TVインターホン付きでお子様のお留守番も安心です。 92.94㎡の建物面積がある物件です。 新築戸建てで新生活を始めてはいかがでしょうか。 川越市に初めてお引越しする方は、 地域に特化したアジア不動産までご依頼下さい。 info@asia-fudousan.co.jpからご連絡をお願いします。 |
||
| 取扱会社 |
|
||
※地図上に表示される物件の位置は付近住所に所在することを表すものであり、実際の物件所在地とは異なる場合がございます。







































