川越市南田島 新築分譲 JR川越線『南古谷駅』徒歩14分 【牛子小学区】
便利なスーパー「ヤオコー 川越南古谷店」まで224mです♪
追い焚き機能付きで水道代の節約につながります♪
103.57㎡の建物面積でスペースの
面でも問題なく快適に過ごせますよ♪
川越市にある、
安心して生活が送れる戸建てはいかがでしょうか♪
049-232-7556、info@asia-fudousan.co.jpから
ご連絡をお待ちしております(*´ω`*)
ローンシミュレーションこの物件を購入した場合の、月々の支払い価格の一例です。借り入れを保証するものではございません。
- 返済期間
-
- 金利
-
- ボーナス時の増額(1回分)
-
- 借入金額:
-
- 頭金:
-

- 毎月の返済額:
(※元利均等方式 金利5.00%まで ※返済年数5~50年まで入力できます)
(※ボーナスは年2回で計算しています。1000万円まで入力できます)
(※物件購入時、その他諸費用が発生する場合がございます)
担当者のコメント 中村空

- 帯津三敬病院まで418mです。
駅まで徒歩14分の場所にある物件です。
きれいで使い勝手の良いシステムキッチン付きの物件になります。
浴室乾燥機のあるお風呂場は洗濯物を干すときにも便利です。
川越市で一戸建てを探すなら、
アジア不動産にお問い合わせください。
当社へは049-232-7556からご連絡頂けます。
ポイント・特徴
物件概要
【新築一戸建】 物件番号:94983197 情報更新日:2025年11月10日 次回更新予定日:2025年11月24日| 所在地 | 埼玉県川越市大字南田島2035-7 | ||
|---|---|---|---|
| 交通 | |||
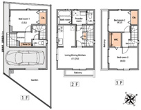
| 間取り/詳細 |
4LDK/ LDK 18.8帖 1室/洋室 6.3帖 1室/洋室 6.2帖 1室/洋室 5.6帖 1室/洋室 5.0帖 1室 |
建物面積(坪数) | 103.57㎡(31.32坪) |
| 価格 | 3,099万円 | ||
| 駐車場/月額料金 | -/- | ||
| 土地の敷金/保証金 | -/- | 借地料/借地期間 | -/- |
| 土地権利 | 所有権 | 土地面積(坪数) | 99.81㎡(30.19坪) |
| 傾斜地部分面積 | - | 路地状敷地 | - |
| 私道負担面積/セットバック | -/無 | 高圧線下面積 | - |
| 地目/地勢 | 宅地/- | 接道状況 | 一方(南西 公道 4.0m) |
| 建ぺい率/容積率 | 60%/200% | 用途地域 | 工業 |
| 都市計画 | 市街化区域 | 種別/構造 | 新築一戸建/木造 |
| 階建 | 2階建 | 築年月(築年数) | 2025年 7月 (予定) |
| 総区画数/販売区画数 | -/- | 向き | - |
| 現況 | 未完成 | その他の法令上の制限 | - |
| 取引態様/引渡時期 | 仲介/相談 | 建築確認番号 | 第HPA-25-02625-1号 |
| 物件番号 | 94983197 | 取引条件の有効期限 | 2025年11月24日 |
| 設備条件 |
|
||
| 備考 |
歩いて224mの場所に、 ヤオコー 川越南古谷店があります。 雰囲気溢れる4LDKの物件はこちらです。 洗面所に窓があるので、 身だしなみを気にして快適な暮らしを送りたいあなたにお勧め。 当社では不動産情報を数多く取り扱っております。 川越線南古谷周辺までお引っ越しをするなら、 info@asia-fudousan.co.jpからお気軽にご連絡ください。 |
||
| 取扱会社 |
|
||
※地図上に表示される物件の位置は付近住所に所在することを表すものであり、実際の物件所在地とは異なる場合がございます。








































