川越市郭町2丁目 新築分譲 「本川越駅」徒歩21分 敷地34坪 【川越小学区】の過去掲載物件情報現況の確認はお気軽にお問い合わせください。
| 所在地 | 埼玉県川越市郭町2丁目20-13 | ||
|---|---|---|---|
| 交通 | |||
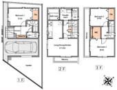
| 築年月(築年数) | 2024年 10月 ( 新築 ) | 種別/構造 | 新築一戸建/木造 |
| 設備条件 |
|
||
【外観】
TOP-アジア不動産 > (戸建(売買))地域から探す > 川越市 > 川越市郭町2丁目 新築分譲 「本川越駅」徒歩21分 敷地34坪 【川越小学区】
| 所在地 | 埼玉県川越市郭町2丁目20-13 | ||
|---|---|---|---|
| 交通 | |||
| 築年月(築年数) | 2024年 10月 ( 新築 ) | 種別/構造 | 新築一戸建/木造 |
| 設備条件 |
|
||
【外観】
件
件
