川越市岸町1丁目 新築分譲 東武東上線『川越駅』徒歩14分 【仙波小学区】
建物面積105.34㎡もありますので、ご検討ください♪オシャレで温かみのあるダウンライト付き♪食器洗乾燥機は食後の家事の時間短縮に役立ちます♪多くの方に好評の、4LDKの物件情報はこちらです♪当社は知識とノウハウを活かし、川越市の川越線川越周辺で満足のいく一戸建てをお探しいたします♪info@asia-fudousan.co.jpから何なりとお申し付けください(#^^#)
ローンシミュレーションこの物件を購入した場合の、月々の支払い価格の一例です。借り入れを保証するものではございません。
- 返済期間
-
- 金利
-
- ボーナス時の増額(1回分)
-
- 借入金額:
-
- 頭金:
-

- 毎月の返済額:
(※元利均等方式 金利5.00%まで ※返済年数5~50年まで入力できます)
(※ボーナスは年2回で計算しています。1000万円まで入力できます)
(※物件購入時、その他諸費用が発生する場合がございます)
担当者のコメント 三浦直士

- 徒歩8分の場所に川越市立仙波小学校があります。デザイン性のあるシステムキッチン付きなので、キッチンがお洒落なスペースになっています。新しい生活に心機一転、新築の戸建て物件はいかがでしょうか。駅まで徒歩14分の場所にある物件です。川越線川越付近でなら、充実した暮らしが可能です。一戸建てを探すのであれば、
からご連絡ください。
ポイント・特徴
物件概要
【新築一戸建】 物件番号:99522805 情報更新日:2025年12月05日 次回更新予定日:2025年12月19日| 所在地 | 埼玉県川越市岸町1丁目48-9 | ||
|---|---|---|---|
| 交通 | |||
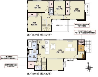
| 間取り/詳細 |
4LDK/ LDK 21.1帖 1室/洋室 7.1帖 1室/洋室 5.6帖 1室/洋室 5.2帖 1室/洋室 3.7帖 1室 |
建物面積(坪数) | 105.34㎡(31.86坪) |
| 価格 | 3,799万円 | ||
| 駐車場/月額料金 | -/- | ||
| 土地の敷金/保証金 | -/- | 借地料/借地期間 | -/- |
| 土地権利 | 所有権 | 土地面積(坪数) | 97.77㎡(29.57坪) |
| 傾斜地部分面積 | - | 路地状敷地 | - |
| 私道負担面積/セットバック | -/無 | 高圧線下面積 | - |
| 地目/地勢 | 宅地/- | 接道状況 | 一方(東 公道 4.0m) |
| 建ぺい率/容積率 | 60%/160% | 用途地域 | 第一種住居 |
| 都市計画 | 市街化区域 | 種別/構造 | 新築一戸建/木造 |
| 階建 | 2階建 | 築年月(築年数) | 2026年 2月 (予定) |
| 総区画数/販売区画数 | -/- | 向き | - |
| 現況 | 未完成 | その他の法令上の制限 | - |
| 取引態様/引渡時期 | 仲介/2026年3月中旬 | 建築確認番号 | 第25UDI1W建08256号 |
| 物件番号 | 99522805 | 取引条件の有効期限 | 2025年12月19日 |
| 設備条件 |
|
||
| 備考 | 川越市立仙波小学校まで徒歩8分。子どもを安心して学校に通わせたいファミリーにおすすめです。浴室乾燥機のあるお風呂場は洗濯物を干すときにも便利です。川越市よりご案内しております、川越線川越周辺の戸建てをお求めの方は、info@asia-fudousan.co.jpまでご要望をお申し付けください。お望みの戸建てをご提供致します。 | ||
| 取扱会社 |
|
||
※地図上に表示される物件の位置は付近住所に所在することを表すものであり、実際の物件所在地とは異なる場合がございます。









































